T2 46m2 –Location d’un T2 non meublé Rue Marguerite Yourcenar, 92700, Colombes*
- 1,060.00€
Aperçu
ID de la propriété: FHP92G001V2
- 1
- 1
- FHP92G001V2
- 46 m²
Description
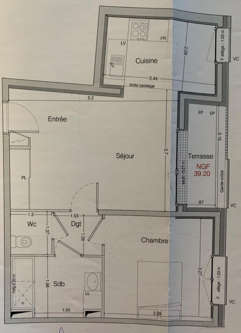
À quelques minutes du tramway T2 dans la vile de Colombes (Proche de Paris 17, à 18min de la Défense), un T2 en location rue Marguerite Yourcenar. Situé au 1er étage avec ascenseur, cet appartement moderne est loué non meublé. Vous serez situé à 5 min à pied du Parc Pierre Lagravère.
La pièce de vie est composée d’un séjour, d’une chambre, d’une cuisine, d’une salle de bain et d’un WC.
Addresse
-
Code postal: 75017
Détails
Updated on mars 29, 2024 at 9:12 pm-
ID de la propriété FHP92G001V2
-
Prix 1,060.00€
-
Taille de la Propriété 46 m²
-
Chambre 1
-
Pièces 2
-
Salle de bains 1
Planifier une visite
Annonce similaire
Grand appartement rénové de 4 pièces – Lamentin (Basse Gondeau)
Basse Gondeau, Le Lamentin, Fort-de-France, Martinique, 97232, France- Lits: 3
- Salle de bains: 1
- Garage: 1
- 140 m²
- Appartement
- FHP History




